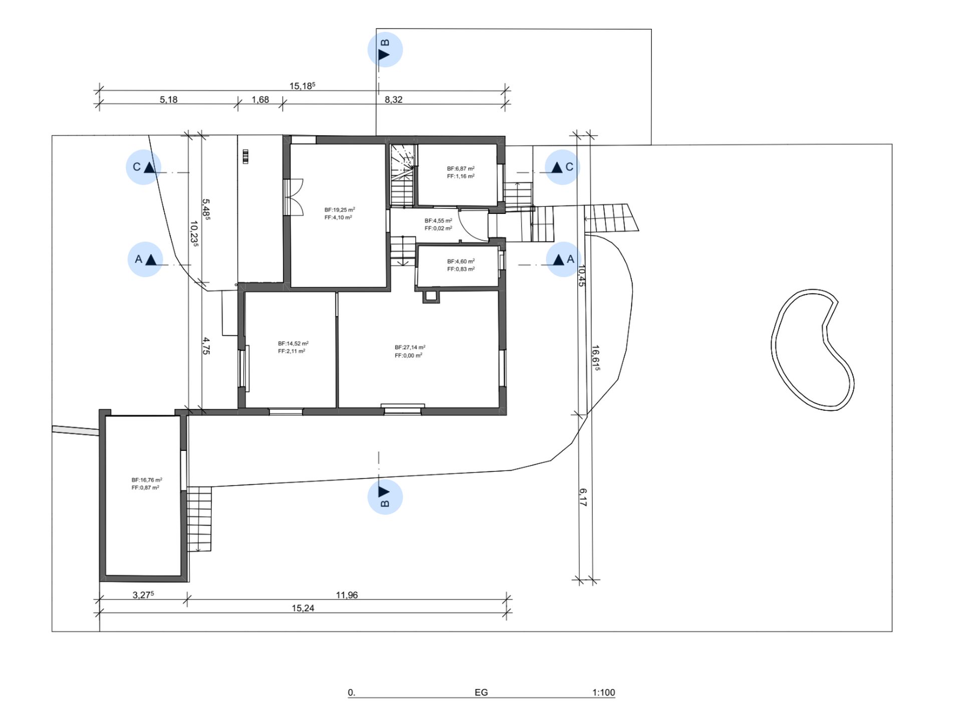
Gebäudeaufnahmen
- Innen- & Aussenaufnahmen
- Grundriss- & Planerstellung
- Ideal als Grundlage für einen Umbau
Die Gebäudevermessung liefert genau, dass was Sie benötigen. Von der Erstellung des Grundrisses bis zum detailierten 3D-Modell ist alles möglich. Sie wählen den Level of Detail (100, 200, 300 oder 400).


